© DAV-Moosburg

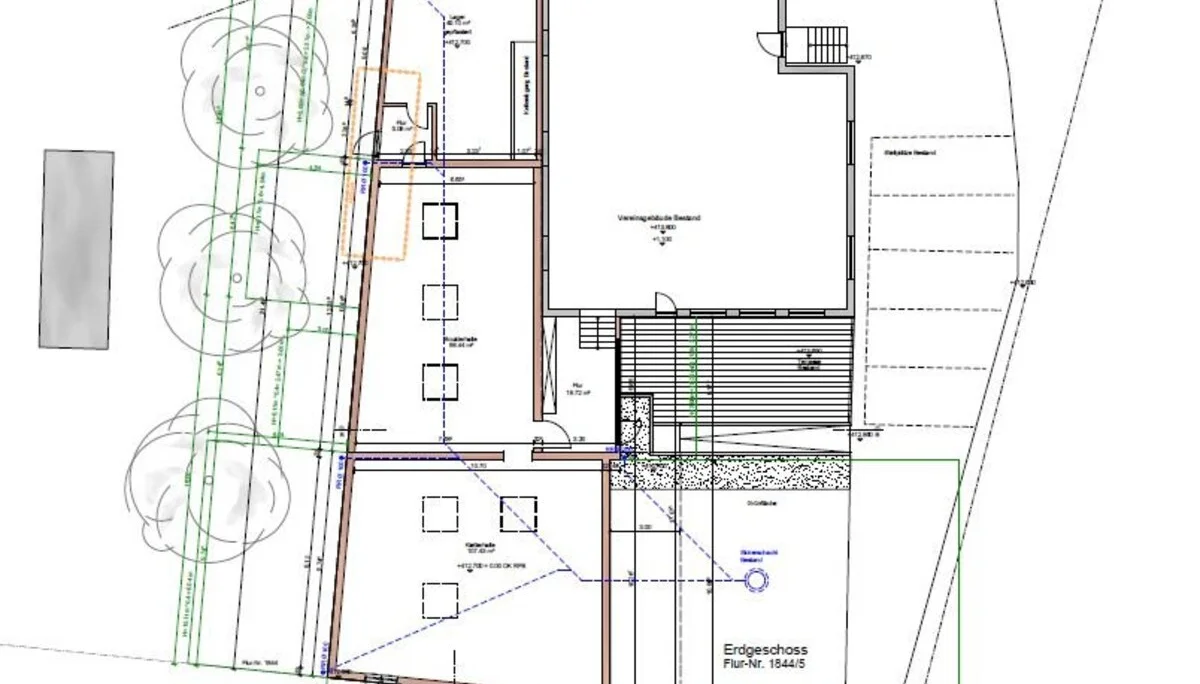
Bauantrag für die geplante Kletter- und Boulderhalle

18.07.2024

Anfang Juli haben wir einen großen Meilenstein erreicht: Der Bauantrag für die geplante Kletter- und Boulderhalle wurde im Landratsamt eingereicht.

Diesem wurde in der Bauausschusssitzung der Stadt Moosburg am 15.07.2024 mit 11:0 Stimmen das gemeindliche Einvernehmen erteilt.

Somit geht der weitere Entscheidungsprozess zurück ans Landratsamt, wo u.a. noch die Untere Naturschutzbehörde eine Stellungnahme abgeben muss.

Die Fertigstellung der Baupläne wurde notwendig um an konkrete Kostenkalkulationen für die Neubauten zu gelangen. Die Beantragung einer Baugenehmigung ist wiederum für die Förderanträge notwendig.

Dies bedeutet NICHT, dass die Umsetzung des gesamten Projekts schon beschlossen ist, oder die mögliche Umsetzung den eingereichten Plänen entspricht.

Über die Finanzierung und Umsetzung des Projekts wird zu gegebener Zeit der Vorstand und Beirat in einer eigenen Sitzung und anschließend in einer außerordentlichen Mitgliederversammlung entschieden.
Die für diese Entscheidung notwendigen Grundlagen sind wir noch immer am Erarbeiten.